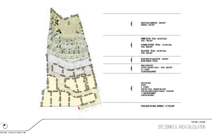
Residential Development at Valambur Home Projects Residential Development At Valambur More Projects Landscape Design Fathima Abbas Villa Jumeirah Dubai Residential Spanish Villa Wandoor Residential